Email: info@creative-grid.com

C.G.E.
Services

Home   >   Services

STEEL DETAILING

Creative Grid Engineering Services is a reliable steel design and detailing company with extensive experience. We offer top-notch steel design and detailing services for commercial, industrial, residential, and various other spaces, all while ensuring compliance with international standards.

Our services are flexible and tailored to meet deadlines, helping our clients remain on track with every project. Our team of detailers and engineers has worked on numerous projects worldwide and is committed to our client's success and the timely delivery of their projects. The combination of our experienced project managers, skilled detailers, and the latest software systems is the cornerstone of our success in the structural steel industry.

DELIVERY METHODOLOGY

methodology

Structural Steel Detailing

We have a team of highly skilled engineers with extensive industry knowledge who are wellequipped to handle all projects. We understand and can visualize the complexities of realtime fabrication and erection, allowing us to address any issues promptly. Our focus is on creating drawings that are easy for fabricators to interpret, ensuring they can complete their work efficiently.

Miscellaneous Steel Detailing

Miscellaneous steel detailing requires a significant amount of independent decision-making, particularly in the modeling phase. This aspect of detailing also demands a strong technical knowledge. Our experienced team approaches each project with precision and utilizes the best methods available.

Estimation And Material Take-off

We have a quick estimation procedure that includes 3D modeling, material reports, a complexity study, and calculations of man-hour consumption. At the customer's request, we can also provide a material take-off.

CONNECTION DESIGN

Creative Grid Engineering Services offers its clients comprehensive connection design sketches and calculation packages. By integrating design and detailing services, the company enhances efficiency and ensures streamlined project delivery.

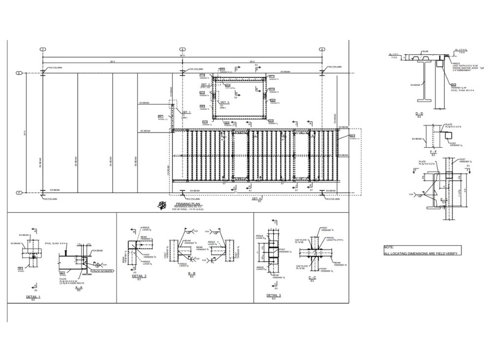
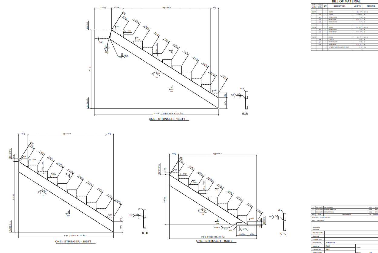
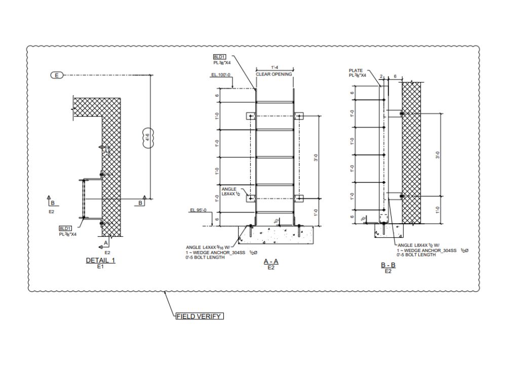
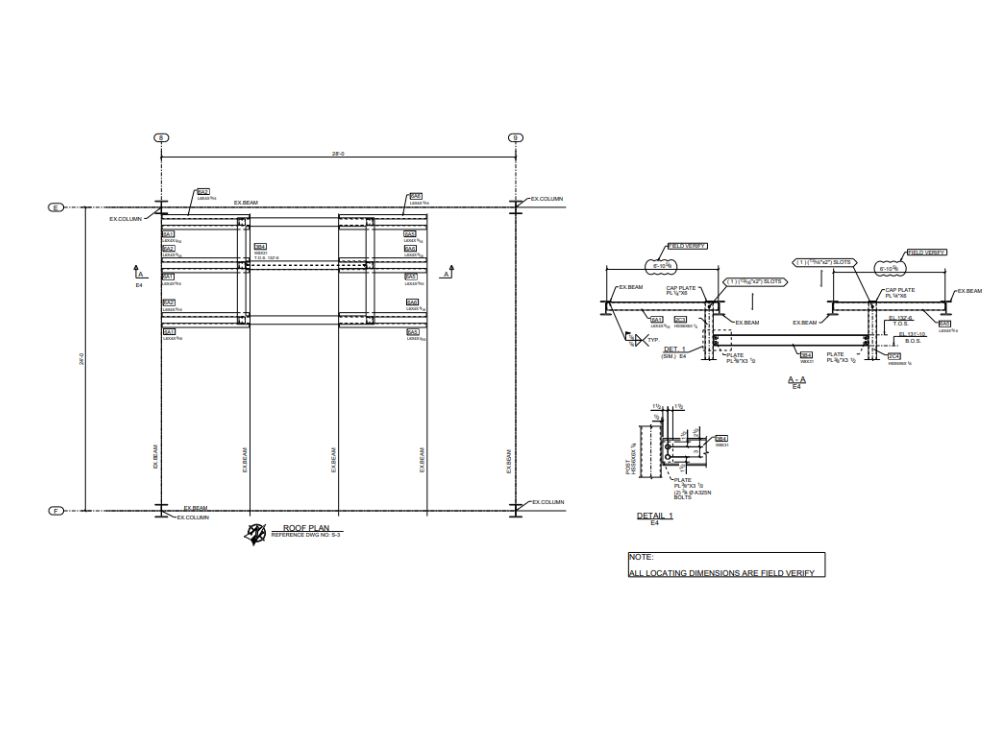
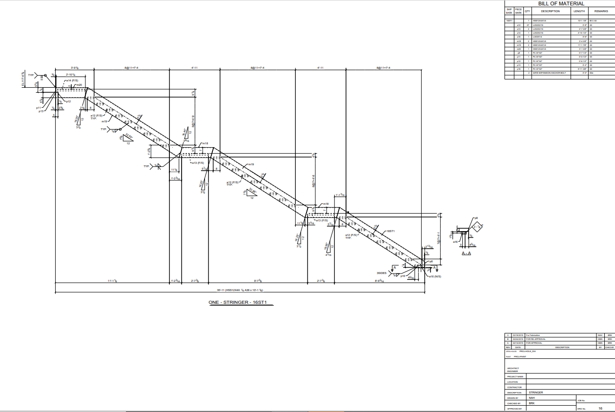
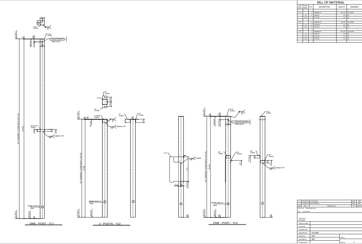
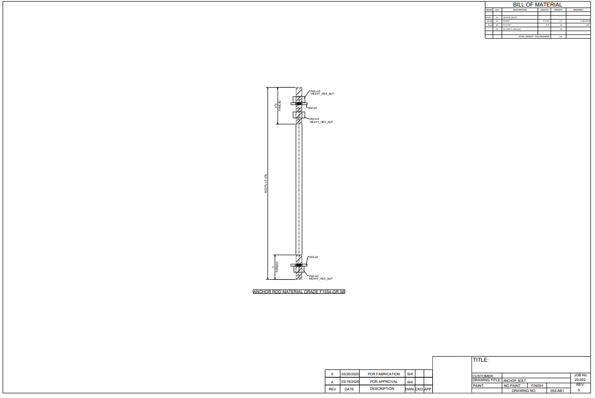
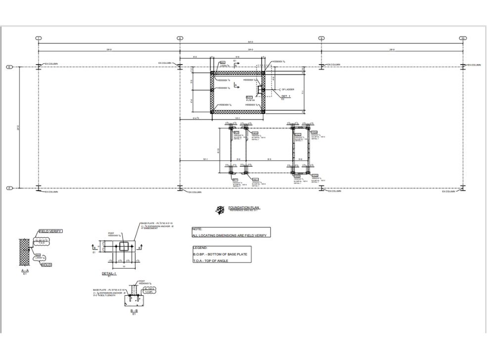
Erection Drawings

Creative Grid Engineering Services is a leading company that offers comprehensive erection drawings. Our team of highly skilled detailers produces drawings that adhere to the highest quality standards, ensuring precision and compliance with the latest regulations. These drawings indicate the location and positioning of various assemblies within a specific structure, making them invaluable for field personnel.

The drawings clearly reveal the location and position of various assemblies of a specific structure and quite useful to personnel in the field.

Our erection drawings encompass.

  • Concrete Footings
  • Beams, Columns, Bracings, and other Structural Components
  • Decking and Grating
  • Stairs and Ladders
  • Enlarge connection details

Our precise steel erection drawings for fabricators and erectors are entirely tailored to meet the client's needs and standards, simplifying complex structures within the project timeline. Our portfolio includes industrial structures, office buildings, schools, airports, hospitals, and more.



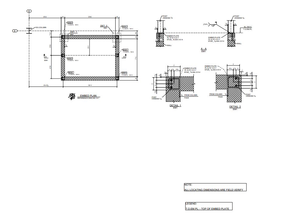
Assembly Drawings

Creative Grid Engineering Services specializes in creating assembly drawings that detail the arrangement of individual parts within a fixed formwork unit. These drawings include a comprehensive list of items and consumables, specifications for required sizes, and elevation labels. Our team specializes in creating assembly drawings that include essential dimensions, weld symbols, bolt markings, a bill of materials, and accompanying notes.

We deliver the final output in editable formats, including PDF, DXF, or DWG, and ensure it includes multiple layers as needed. Separate layers are created for dimensions, body lines, and text, while blocks are designed for various entities according to client requirements.

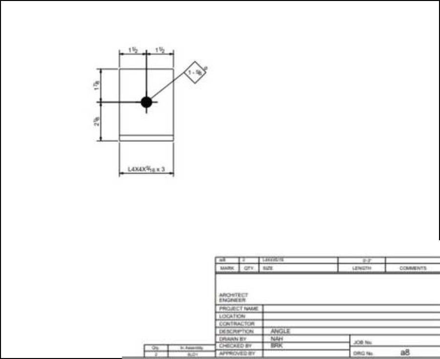
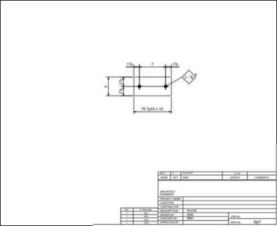
Part Drawings

Single-part drawings are detailed workshop drawings that provide fabrication information for an individual component, typically without welds. These drawings are usually created on smaller sheet sizes and offer comprehensive and precise descriptions of the part's dimensions. They convey all the necessary information required to manufacture the part effectively.

  • Part Name
  • Angle of projection
  • Material Type
  • Drawing Scale
  • Date And/or Revision
  • Necessary Views
  • Isometric View
  • All Necessary Dimensions (Width, Depth, Height, Size, Etc.)

The clarity of an efficient part drawing is essential to achieving architectural success in any project. At Creative Grid Engineering Services, we are highly skilled in producing precise and effective drawings, consistently exceeding client expectations with every deliverable.

Creative Grid Engineering Services, along with our team of structural detailing engineers, provides custom reports for both small and large projects based on developed models. Our expertise in utilizing drawings, reports, and other data facilitates effective change management. These reports include a drawing log, bolt list, parts list, and assembly report, and are directly derived from the model database.

We make use of standard report templates and can also modify existing templates to meet specific client requirements. Our approach ensures accurate, intelligent, and adaptable connections that seamlessly integrate all elements, allowing us to generate reports and fabrication data from the model in an automated manner. Additionally, the bills of materials, process schedules, and other related reports offer valuable insights into the structural details for all stakeholders.

Our proprietary report formats include text, DOCX, XLSX, and more. These custom reports can also be shared with production, erection, and logistics teams.

Top